中古一戸建て いすみ市日在
所在地
いすみ市日在
1,790万円
25.96坪
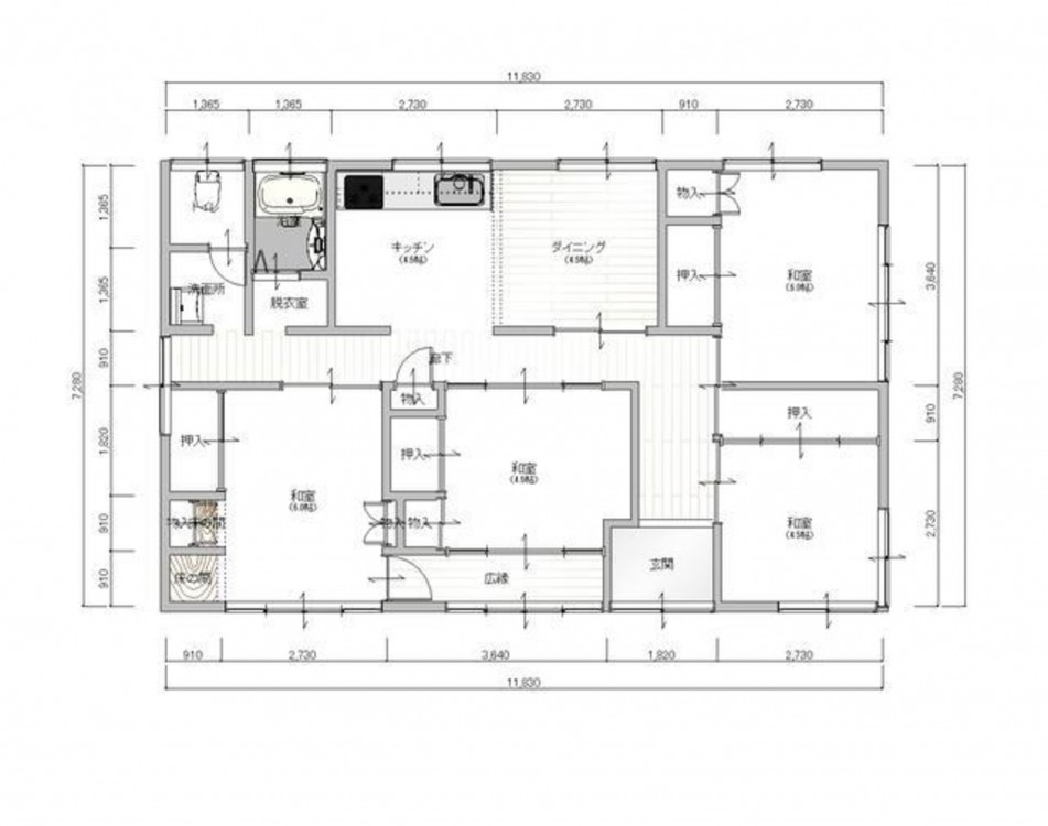
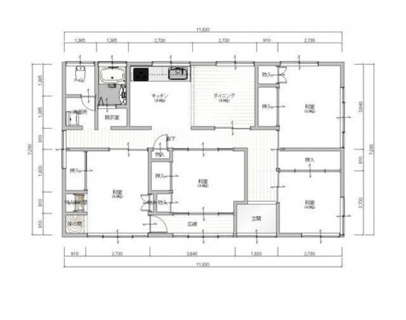
4DK
リフォーム済!駅近!敷地約242坪の大空間!
居住以外にも別荘、民泊、寮など夢が広がるお家です
陽当たり良い和室の畳や水周りも新品
大きな空と深い緑、そして海の香り・・こんな贅沢な日常がここにはあります
■せんどう大原岬店まで約1.8km(車で約6分)
■ベイシアいすみ大原店まで約1.2km(車で約3分)
■カインズ 大原店まで約1.5km(車で約4分)
■日在海岸まで約900m(車で約3分)
物件概要
- 交通
-
外房線 三門駅 まで 徒歩5分
- 接道状況
-
西側 私道4m 間口約44m
南側 私道4m 間口約16m - 土地面積
- 公簿 802.00㎡ (242.60坪)
- 建物面積
- 85.85㎡ (25.96坪)
- 築年数
-
1968年
(昭和43)
7月
築57年 - 建ぺい率
- 60%
- 容積率
- 200%
- 土地権利
- 所有権
- 構造および階数
- 木造 地上1階建
- 小学校区
- 東海 ( 2800m )
- 中学校区
- 大原 ( 4700m )
- 私道負担
- 有 61.71 ㎡
- 地目
- 宅地
- 現況
- 空
- 引渡時期
- 相談
- 駐車場
- 有 普通3台
- 上水道
- 公共
- 下水道
- 浄化槽個別
- ガス
- プロパン個別
- 都市計画
- 非線引区域
- 用途地域
- 設備・条件
- システムキッチン、IHクッキングヒーター、洗浄便座、1BOX駐車可、駐車場3台分、木造車庫シャッター付き
- 備考
-
現況有姿・境界非明示
外壁と屋根は塗装完了
キッチン・トイレは新品に交換済み - 取引態様
- 仲介


